china garden perry hall carryout menu
Online Menu Of China Garden Restaurant Louisville Ohio 44641 Zmenu

Indian Crepe Co Perry Hall Md Restaurant Menu Delivery Seamless
China Garden 12 Reviews 1486 N Perry St Ottawa Oh Yelp
Overlea Chinese Delivery Chinese Take Out In Overlea Baltimore Grubhub
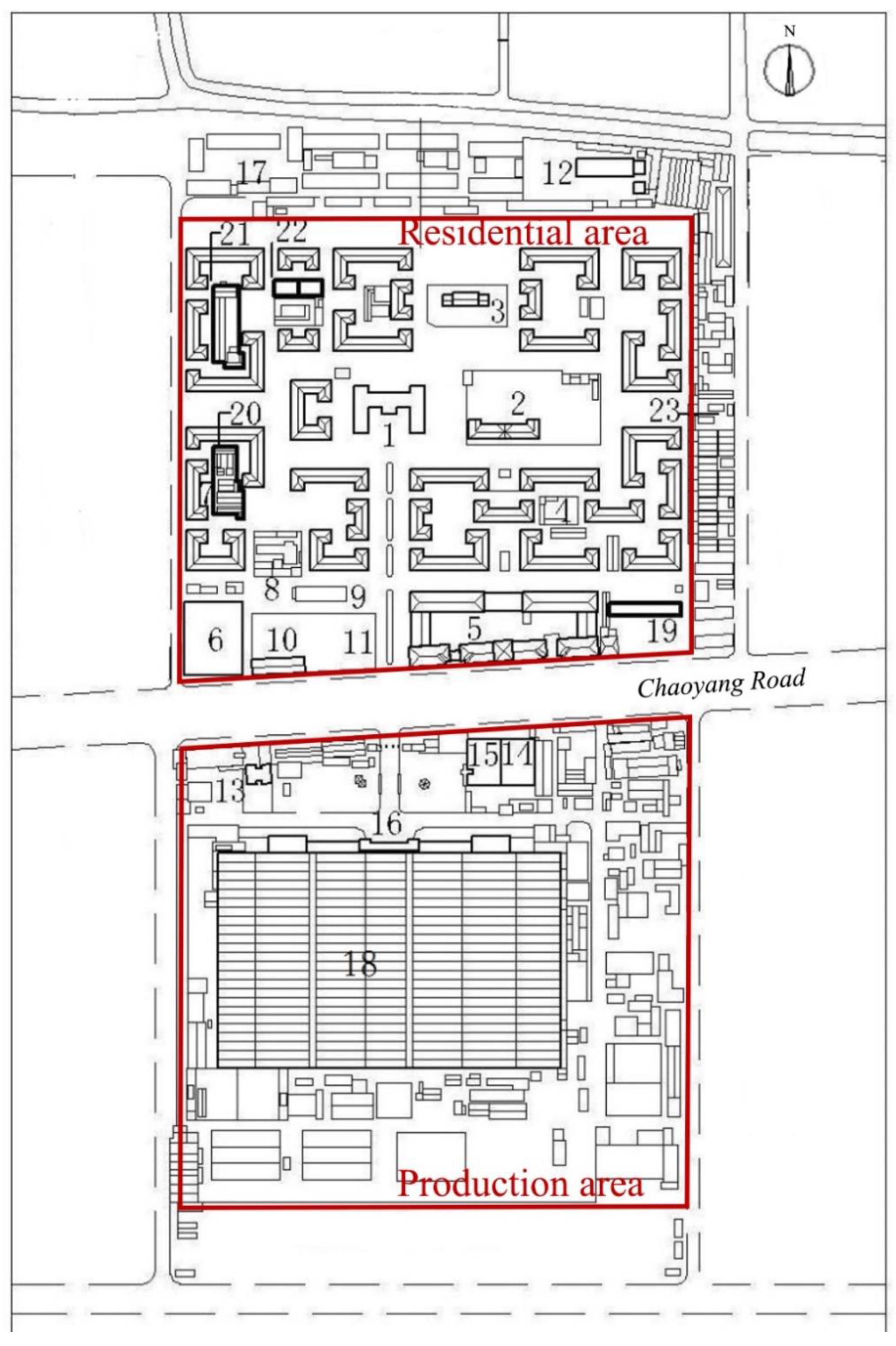
Sustainability Free Full Text Corporate Run Society The Practice Of The Danwei System In Beijing During The Planned Economy Period Html
China Garden Delivery Menu Order Online 1734 N Rolling Rd Windsor Mill Grubhub
China Garden Restaurant 8653 Belair Rd Baltimore Md Order Online Chinese Takeout
Bombay Nights Menu Pizza Delivery Perry Hall Md Order Slice
Conrad S Seafood Restaurant Perry Hall Menu Prices Restaurant Reviews Reservations Tripadvisor
Chinese Food Delivery Perry Hall China Garden
China Garden Restaurant Take Out
China Garden Restaurant Menu In Irwin Pennsylvania Usa
The Orient Restaurant 96 Photos 75 Reviews 9545 Bel Air Rd Perry Hall Md Menu Yelp
Order Double T Diner Perry Hall Menu Delivery Online Baltimore Menu Prices Uber Eats
Silver Spring Mining Company Perry Hall Facebook
Michigan Daily Digital Archives April 19 1993 Vol 103 Iss 120 Image 15
China Graden Online Order Add 3060 Britton Road Perry Mi 48872 Tel 517 625 6888 China Garden
20 Best Restaurants In Dallas From Tex Mex To Vietnamese Conde Nast Traveler
Order Looney S Pub Perry Hall Menu Delivery Online Baltimore Menu Prices Uber Eats
China Garden 1486 N Perry St Ottawa Oh Chinese Restaurants Mapquest